FAZENDINHA
- R$1.550.000,00
Visão Geral
Referência do Imóvel: 1261
- 1261
- Lote/Terreno
- 2.635,00 m² m²
Descrição
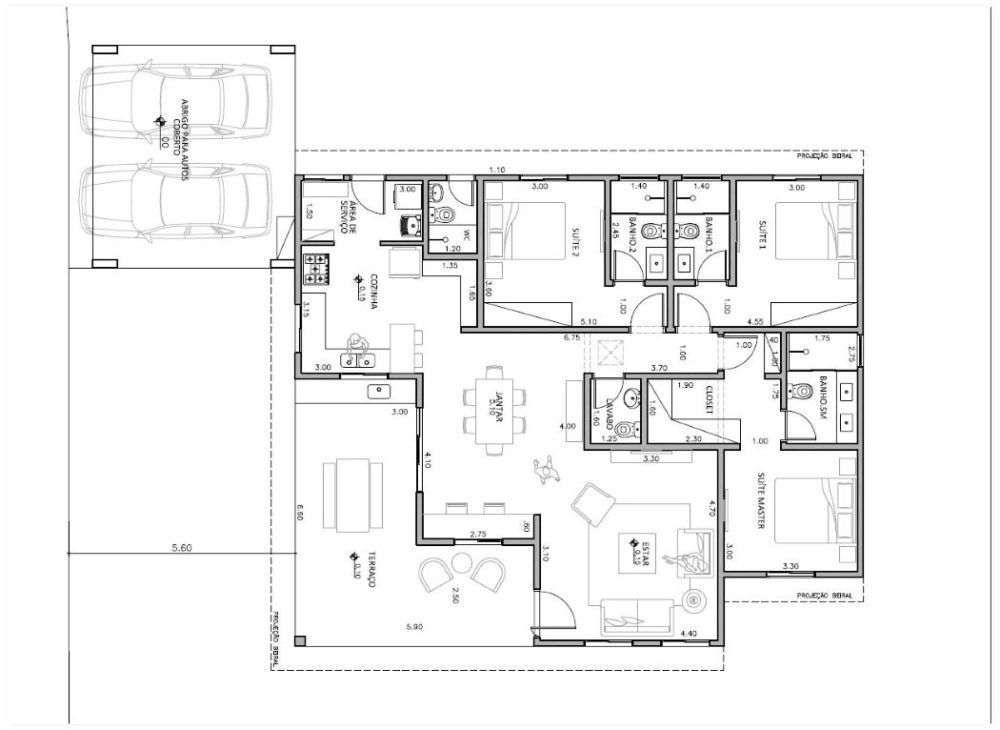
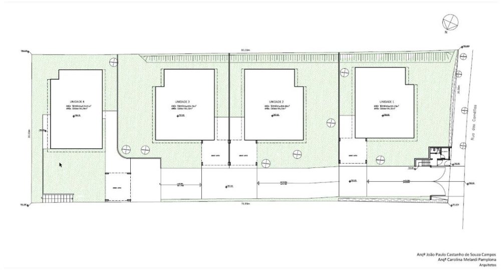
FAZENDINHA – Área 2.635 m² c/ PROJETO APROVADO p/ condomínio de 4 casas!
ESTUDA PARCERIA
POSSUI ALVARÁ PARA INÍCIO IMEDIATO DA OBRA
- Endereço do imóvel: Rua das Camélias, s/n (Lote 03-B / Quadra D) – Fazendinha, (Bairro postal: Chácara Vale do Rio Cotia) – Carapicuíba, SP – CEP: 06355-400
- (Endereço da portaria da Fazendinha: Av. São Camilo, 4151, Vilarejo, Carapicuíba)
- AT: 2.635,00 m² (frente: 30,50 m x 80 m nas laterais)
- Valor de Venda: R$ 1.550.000,00 (um milhão, quinhentos e cinquenta mil reais)
- Valor do condomínio – Amafaz /Fazendinha (Jan/25): R$ 308,18
- Valor do IPTU (2025): R$ 5.144,00 ano à vista ou 12 x de R$ 571,60
- Permuta: não estuda
- Documentação: 100% ok – Projeto aprovado na Prefeitura / Alvará de obra (válido até Dez/25) – pronto para iniciar / Meio ambiente – já livre de vegetação
- Financiamento Bancário: permite
- Placas de imobiliárias: Não permite
- Estado de Conservação: limpo de vegetação e terraplenagem feita.
- Ano da construção original: –
Descrição do imóvel:
- Oportunidade para incorporadores.
- Valor estimado do VGV p/ o projeto atual: (PP informa diretamente p/ interessado).
- Terreno 80% plano, com parte em aclive suave na frente, e declive suave nos fundos.
- São 2.635m² com 30,5 metros de frente para rua e área de preservação, 80 metros nas laterais e 30 metros nos fundos.
- Vista deslumbrante – frente para APP e fundos para o verde da Fazendinha!
- Vizinho de muro com a Escola da Carol
- O terreno se apresenta sem vegetação e com terraplenagem pronta.
- Projeto aprovado para 4 casas térreas com 185m² cada, pronto para iniciar construção!
– – – – – – – – – – – – – – – – – – – – – – – – – – – –
Nº Matrícula: 32.959 / R.I. Carapicuíba
Inscrição Cadastral: 23231.51.50.0304.00.000 / Carapicuíba
Características
Endereço
Abrir no Google Maps-
Endereço: Av. São Camilo, 4151
-
Cidade: Carapicuíba
-
Estado: SP
-
Cep: 06355-400
-
Bairro: Vilarejo
Detalhes
Atualizado em novembro 5, 2025 no 3:31 pm-
Referência do Imóvel 1261
-
Preço R$1.550.000,00
-
Área Privativa 2.635,00 m² m²
-
Área Total 2.635,00 m² m²
-
Tipo do Imóvel Lote/Terreno
-
Status do Imóvel Venda
Informações de Contato
Imóveis Similares
Terreno Comercial 292,00m², Centro de Cotia
- R$285.000,00
5 meses atrás
Cond. Nova Higienópolis – 2 LOTES / 1.200m² – 3 dorms/1ste, gourmet, lareira, grande Jardim!
- R$2.200.000,00
5 meses atrás
Cond. Vitta Granja Viana- LOTE 137,22m² com PROJETO
- R$180.000,00
5 meses atrás
Cond. Golf Village
- R$530.000,00
5 meses atrás


